318 Piccadilly Street

London, Ontario – Fully renovated 2 bedroom + den home

$2,600 / month  ·  plus hydro

Now renting – available April 1st. Entire house, not shared with other tenants.


Arrange a viewing

Home overview

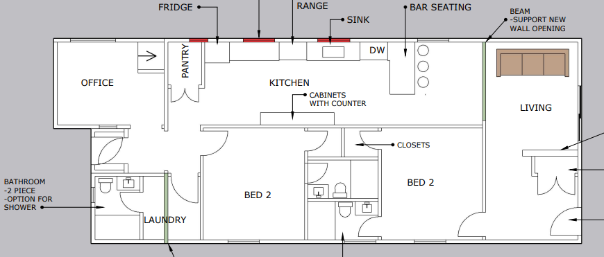
Recently renovated home on Piccadilly Street between Richmond Street and Waterloo Street, in the downtown / Woodfield area. Two bedrooms plus a den, each bedroom with its own ensuite bathroom, plus additional bathrooms on the main floor and in the basement.


2 bedrooms + den 3.5 bathrooms Entire house No pets No smoking

Key features

Interior

  • Ensuite bathroom for each bedroom
  • Additional full bathroom on main floor
  • Half bathroom in basement
  • Approx. 10-foot ceilings
  • Main floor laundry
  • New flooring, cabinets, fixtures, furnace and A/C

Kitchen & living

  • All new kitchen appliances
  • Spacious walk-through kitchen
  • Peninsula seating
  • Opens onto living room
  • Lots of basement storage

Outdoor & parking

  • Large front porch
  • Private backyard
  • Storage shed and pergola
  • Off-street parking

Location highlights

Situated in the historic Woodfield / downtown area, close to everyday essentials and city amenities.

Floor plan

Contact CANOE Properties

Interested in renting 318 Piccadilly Street or arranging a tour?

Phone: call or text 519‑204‑3295

Email: canoeproperties@gmail.com

Renovations are nearing completion; interior photos and floorplans can be shared or viewed during a tour.

logo